Rif: pezzana castelletto
PEZZANA
VERCELLI
Soluzione indipendente su quattro lati di recente ristrutturazione con cortile di proprietà esclusiva e terreno.
La proprietà è accessibile da passo carraio diretto in cortile oppure da portoncino pedonale.
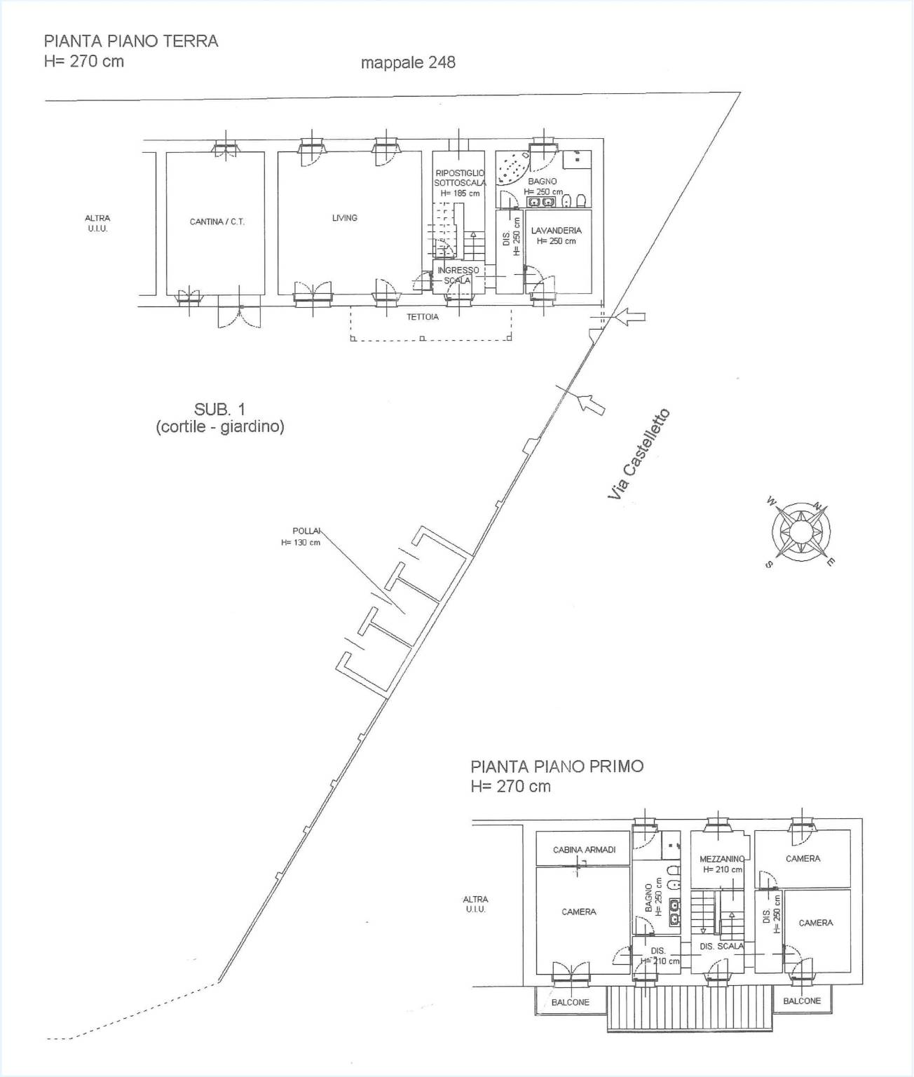
La casa è anticipata da un comodo portico e presenta un ingresso da portoncino blindato su disimpegno dal quale è possibile accedere a tutti i locali della zona giorno: la zona living con cucina a vista predisposta con isola, un ampio bagno con vasca idromassaggio, il locale tecnico/lavanderia ed un pratico ripostiglio.
La zona notte al primo piano è raggiungibile dalla scala interna, e comprende una camera matrimoniale con cabina armadi e balcone, due camere singole ed un secondo bagno di ampia metraura fornito di doccia.
Complessivamente la casa è in eccellente stato manutentivo in quanto recentemente e finemente ristrutturata, tanto da presentare una classe energetica A2 ed un impianto di riscaldamento a pavimento con termostufa a legna per il piano terreno, e riscaldamento con caloriferi tramite la caldaia a condensazione per la zona notte.
A servizio della casa troviamo più pertinenze, tra le quali il magazzino adoperato come box auto, la tettoia di circa 50 mq ed infine l'ampio cortile (in precedenza terreno) di oltre 4000 mq in parte cementato ed in parte piantumato.
La proprietà è accessibile da passo carraio diretto in cortile oppure da portoncino pedonale.
La casa è anticipata da un comodo portico e presenta un ingresso da portoncino blindato su disimpegno dal quale è possibile accedere a tutti i locali della zona giorno: la zona living con cucina a vista predisposta con isola, un ampio bagno con vasca idromassaggio, il locale tecnico/lavanderia ed un pratico ripostiglio.
La zona notte al primo piano è raggiungibile dalla scala interna, e comprende una camera matrimoniale con cabina armadi e balcone, due camere singole ed un secondo bagno di ampia metraura fornito di doccia.
Complessivamente la casa è in eccellente stato manutentivo in quanto recentemente e finemente ristrutturata, tanto da presentare una classe energetica A2 ed un impianto di riscaldamento a pavimento con termostufa a legna per il piano terreno, e riscaldamento con caloriferi tramite la caldaia a condensazione per la zona notte.
A servizio della casa troviamo più pertinenze, tra le quali il magazzino adoperato come box auto, la tettoia di circa 50 mq ed infine l'ampio cortile (in precedenza terreno) di oltre 4000 mq in parte cementato ed in parte piantumato.
Consistenze
| Descrizione | Superficie | Sup. comm. |
|---|---|---|
| Principali | ||
| Immobile - piano terra | 96 Mq | 96 Mqc |
| Immobile - 1° piano | 96 Mq | 96 Mqc |
| Cantina - piano terra | 32 Mq | 8 Mqc |
| Cantina - piano terra | 30 Mq | 8 Mqc |
| Soffitta - 1° piano | 58 Mq | 29 Mqc |
| Accessorie | ||
| Terreno - piano terra | 4.200 Mq | 420 Mqc |
| Totale | 657 Mqc | |






